Unser neues Vereinsheim
Neues Vereinsheim für den TVO ?
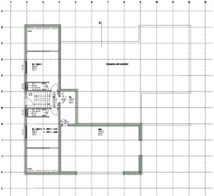
Stolze 90 Jahre hat es inzwischen auf dem Buckel, vor 40 Jahren wurde es erweitert: unser Vereinsheim mit Turnhalle an der Grundstraße ist mittlerweile in seiner Bausubstanz ziemlich am Ende. Und da ein Verein einen solchen Mittelpunkt für Sport und Geselligkeit braucht, verfolgt der TVO seit 2017 das Projekt eines Neubaus an gleicher Stelle mit Turnhalle, Wirtschafts- und Sanitärräumen. Nach dem Grundsatzbeschluss der Mitgliederversammlung für dieses Projekt, das vorläufig mit Gesamtkosten von ca. 0,5 Mio Euro kalkuliert wurde, ist der Stand derzeit so, dass unser Antrag auf Baugenehmigung der Gemeinde Birkenfeld zur Prüfung vorliegt. Parallel dazu haben wir die Zusage mehrerer Firmen, in den nächsten Wochen Angebote für die wichtigsten Gewerke abzugeben. Zuvor hat der TVO die Finanzierung in der geschätzten Kostenhöhe sichergestellt durch die Unterstützung der Gemeinde Birkenfeld mittels Zuschuss, Grundstückserwerb und Darlehen, ergänzt durch Landesmittel, Spenden und Eigenleistungen.
Erklärtes Ziel des TVO ist die Realisierung in 2019, ob es klappt, wird sich zeigen, wenn die Angebote eingehen. Wir werden an dieser Stelle über den jeweiligen Stand weiter informieren.
![]() |
![]() |
![]() |
[frontpage_news widget=”1457″ name=”Neubau Neuigkeiten”]



